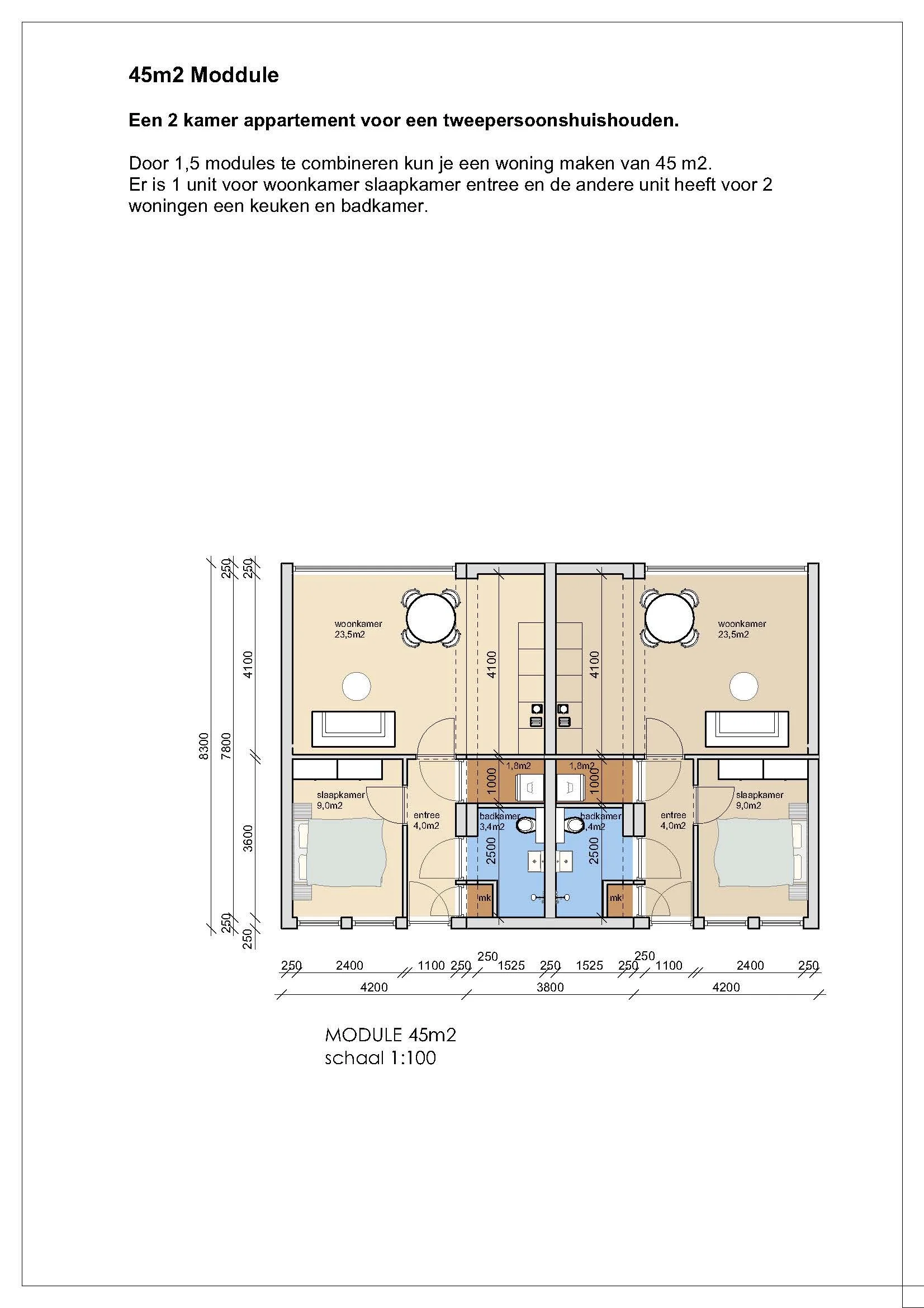
Onze modules voor de verschillende woonsituaties. Abonneer op onze nieuwsbrief. Meld u aan met uw e-mailadres om nieuws en updates te ontvangen. Email Address Sign Up Thank you!